
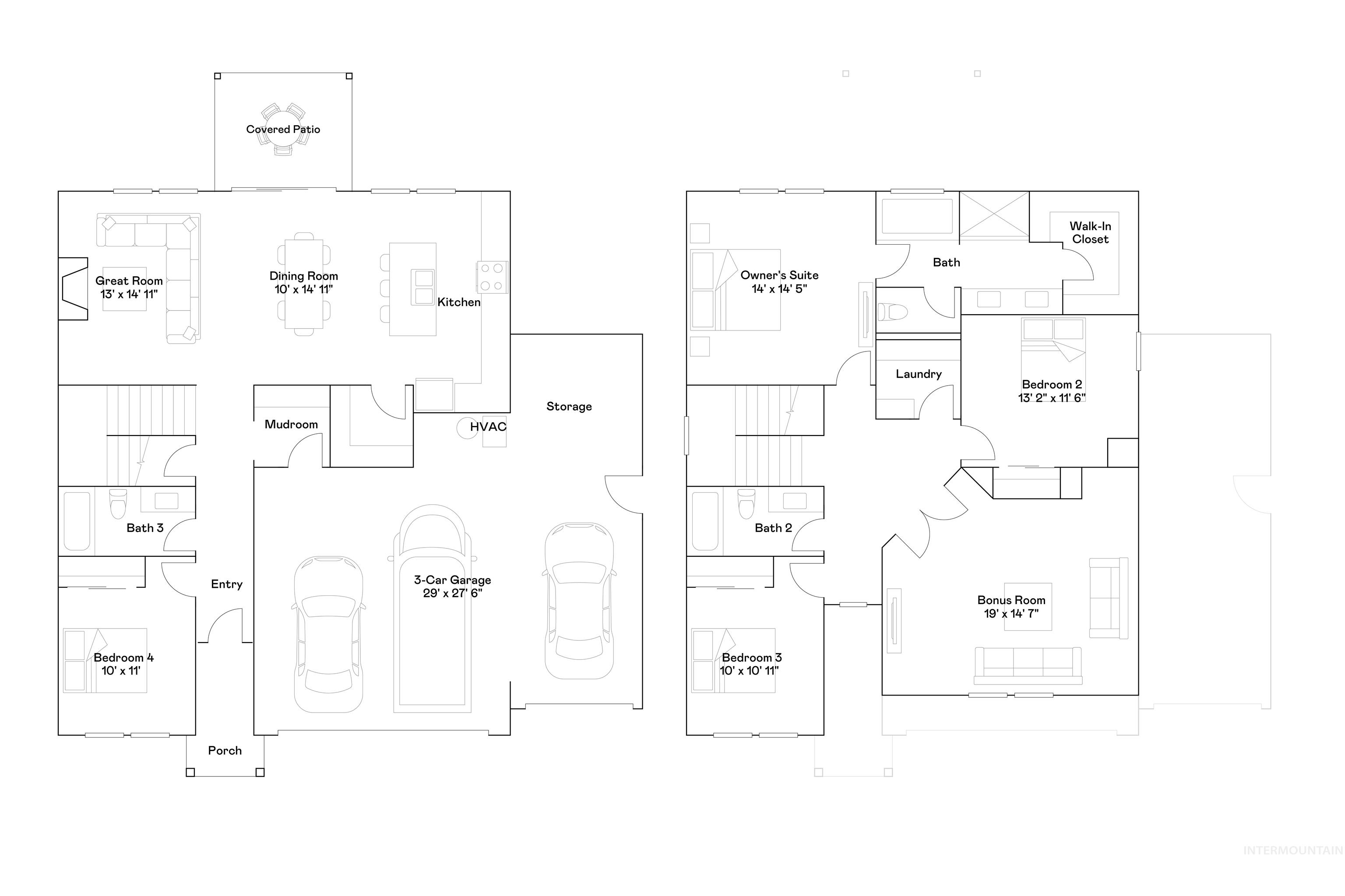
Luxury lives in the details with the All-Star Series. This premium collection features 9’ ceilings on the main level, creating a bright and open living space complete with a cozy fireplace and covered patio. The gourmet kitchen offers double ovens, a gas cooktop, quartz countertops, a walk-in pantry, and designer cabinetry. You’ll also find quartz countertops in the bathrooms, with luxury vinyl plank flooring throughout the main living areas. Added touches like 6 baseboards, garage service doors, full aluminum gutters, and tankless water heaters reflect the high standards of this standout series. Mooseland Estates is where charm and convenience come together. With only 11 homesites available, this is a rare opportunity to own a new home in West Boise with quick access to top-rated schools, shopping, dining, and recreation.
| MLS # | 98966467 |
|---|---|
| Listing Type | For Sale |
| Style | House |
| HOA Dues | $150 |
| Sub-Type | New Construction |
| Status | Active |
| Year | 2026 |
| Days On Site | 7 |
| Listing Provided By | Fathom Realty | Janelle Anderson |
| Bed(s) | 4 |
|---|---|
| Bath(s) | 3 |
| SQ Feet | 2,301 |
| Garage | 2 |
| Story(s) | 2 |
| Acreage | 0.13 |
| Cooling | Central Air |
|---|---|
| Cooling Yes / No | Yes |
| Heating | Forced Air, Natural Gas |
| Heating Yes / No | Yes |
| Interior Features | Bed-Master Main Level, Double Vanity, Walk-In Closet(s) |
| Appliances | ENERGY STAR Qualified Water Heater |
| Fireplaces Total | 1 |
| Fireplace Features | One, Gas, Insert |
| Fireplace Yes / No | Yes |
| Roof | Architectural Style |
|---|---|
| Lot Features | Sm Lot 5999 SF, Auto Sprinkler System, Full Sprinkler System, Pressurized Irrigation Sprinkler System |
| Construction Materials | Frame, Hardi Plank Type |
| Patio And Porch Features | Covered Patio/Deck |
| Fencing | Full, Vinyl |
| Parking Features | Attached |
|---|---|
| Garage Spaces | 2 |
| Attached Garage Yes / No | Yes |
| Utilities | Sewer Connected, Cable Connected, Broadband Internet |
|---|
| Tax Year | 2024 |
|---|---|
| Tax Annual Amount | 0 |
| Tax Legal Description | Lot 03, in Block 01, of Mooseland Estates Subdivision, recorded in the records of Ada County, Idaho |
| State | ID |
|---|---|
| County | Ada |
| City | Boise |
| Zip Code | 83713 |
| Area | Boise W Garden City |
| Community Name | Mooseland Estates |
| School District | West Ada School District |
| Elementary School | Frontier |
| High School | Centennial |
| State | ID |
|---|---|
| County | Ada |
| City | Boise |
| Zip Code | 83713 |
| Area | Boise W Garden City |
| Community Name | Mooseland Estates |
| School District | West Ada School District |
| Elementary School | Frontier |
| High School | Centennial |